4 chambres
5 pièces
1 garage
Votre projet de construction au cœur de Sillingy
Situé à quelques pas du centre de Sillingy, ce projet de construction entièrement personnalisable vous offre une belle opportunité de concrétiser la maison de vos envies.Implantée sur un terrain de 533 m² déjà viabilisé, vous profiterez environnement calme et agréable, tout en restant à proximité immédiate du village et de ses commodités.
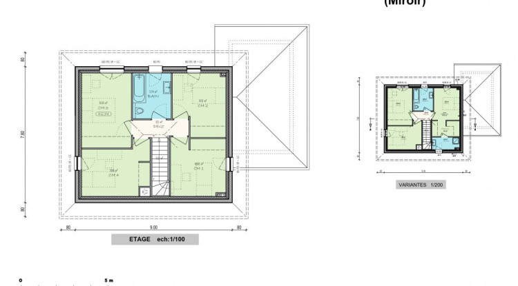
La maison développe une surface de 111 m² et propose une belle pièce de vie au rez-de-jardin, ouverte sur l'extérieur. À l'étage, vous disposerez de quatre chambres ainsi qu'une salle de bains, offrant un espace nuit fonctionnel et confortable pour toute la famille.
Pour plus de praticité au quotidien, un garage accolé vient compléter ce bien.
Découvrez ce projet de construction d'une maison Artis ! Artis est constructeur de maisons individuelles depuis plus de 35 ans en Pays de Savoie et Pays de Gex, et vous accompagne à chaque étape de votre projet.
Choisir Artis pour votre maison, c'est bénéficier de toutes les garanties d'un Contrat de Construction de Maison Individuelle (CCMI) et d'un suivi rigoureux assuré par nos équipes tout au long de votre parcours de construction.
Prix : 574 285 € (terrain, frais de notaire, taxes et terrassement / VRD inclus) Ref : EHE-H111-ODB
Localisation de la commune
04 50 01 13 14
Plus d’informations sur votre maison neuve à Sillingy


