Page d'accueil
Nos offres terrain + maison
Terrain + Maison de 100 m² sur Saint-Paul-en-Chablais (74500)
4 chambres
5 pièces
2 niveaux
VENEZ CONSTRUIRE VOTRE MAISON ARTIS SUR LA COMMUNE DE ST PAUL
Découvrez ce projet de construction d'une maison Artis sur la commune de ST PAUL.Le terrain offre une joli vu dégagée.
Artis est constructeur de maisons individuelles depuis près de 35 ans en Pays de Savoie et Pays de Gex. Choisir Artis pour votre projet, c'est bénéficier de toutes les garanties d'un Contrat de Construction de Maison Individuelle et du suivi rigoureux par nos équipes de votre parcours de construction !
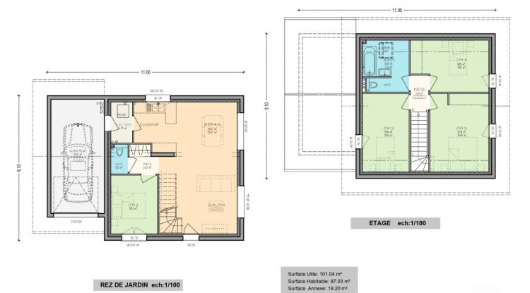
Généreuse en espaces annexes et en rangements, la Spirit multiplie les possibilités ! Coin cuisine, repas et salon s'étendent sur un beau volume, complété d'un bureau ou d'une chambre de plain-pied.
A l'étage les rangements optimisent l'espace des 3 chambres. Le garage est accolé. Une seconde salle d'eau est aménageable au rez de chaussée.
Contactez-nous !
Prix TTC : 455 000€ incluant, le terrain , les frais de notaire, l'étude de Sol , le BT01, les viabilités, et les VRD.
Hors Parquet et Peintures.
Localisation de la commune
04 50 01 13 14
Plus d’informations sur votre maison neuve à Saint-Paul-en-Chablais
