4 chambres
5 pièces
1 garage
Votre maison neuve dans un environnement calme signée ARTIS
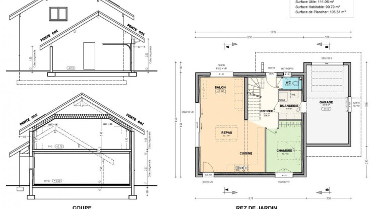
Découvrez ce projet de construction signé ARTIS, une maison d'environ 112 m² avec garage accolé, idéalement située dans le hameau d'Écorans, sur la commune de Collonges. Implantée sur un terrain arboré à faible pente de 648 m², dans un secteur calme et verdoyant, cette maison bénéficie d'une exposition lumineuse tout au long de la journée. Le rez-de-jardin offre une agréable pièce de vie ouverte sur la terrasse et le jardin, ainsi qu'une chambre au niveau principal, pour un confort de vie au quotidien. À l'étage, trois chambres spacieuses et une salle de bains indépendante composent la partie nuit. La maison proposée, pensée pour allier espace, confort et fonctionnalité, constitue une base modulable : chaque élément peut être adapté pour répondre à vos attentes, dans le respect des contraintes techniques et réglementaires. Artis est constructeur de maisons individuelles depuis près de 35 ans en Pays de Savoie et Pays de Gex. Choisir Artis pour votre projet, c'est bénéficier de toutes les garanties d'un Contrat de Construction de Maison Individuelle et du suivi rigoureux par nos équipes de votre parcours de construction ! Prix : 530 000 € (terrain, frais de notaire, taxes et VRD inclus) Ref : EHE-SPI112-COLocalisation de la commune
04 50 01 13 14
Plus d’informations sur votre maison neuve à Collonges


