5 chambres
6 pièces
1 garage
Maison neuve individuelle de 130m² signée Artis - COLLONGES
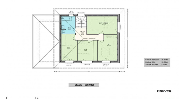
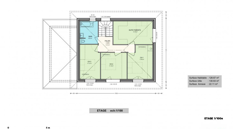
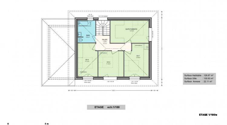
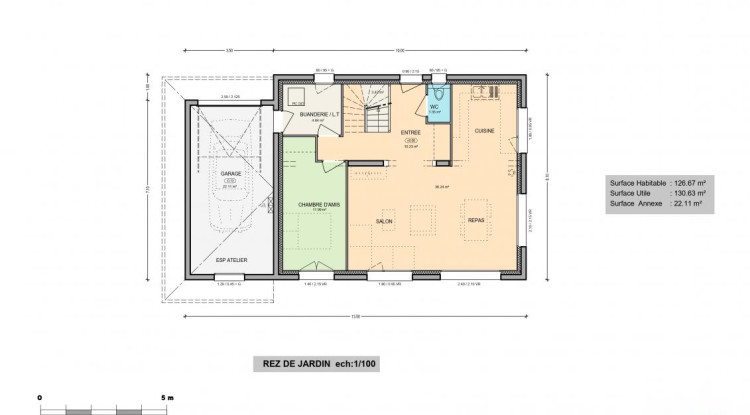
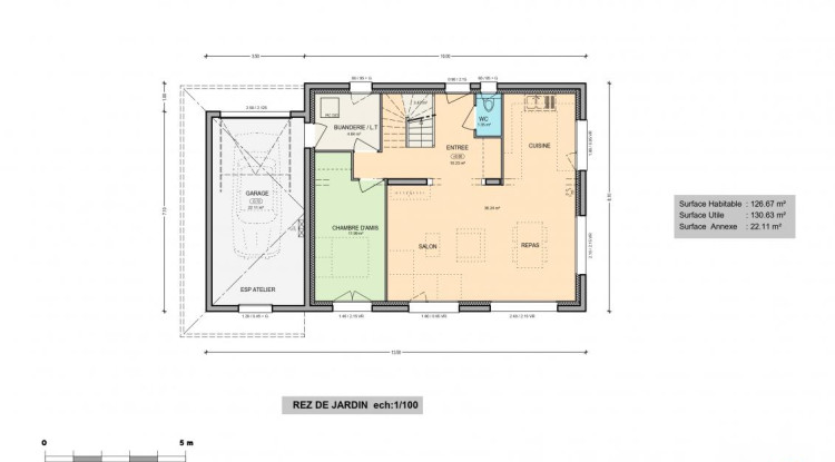
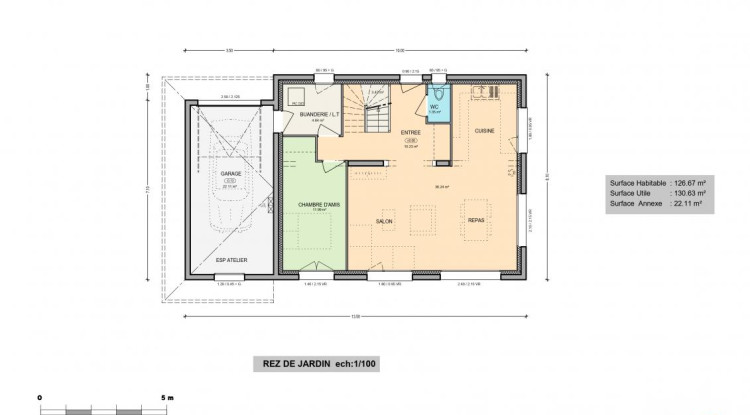
À découvrir sur la commune de Collonges, dans le paisible hameau d'Écorans, ce projet de construction ARTIS vous propose une maison contemporaine et familiale de 130 m² habitables, avec garage accolé. Implantée sur un terrain arboré à faible pente de 770m², dans un environnement calme et résidentiel, cette maison séduit par ses volumes généreux et sa luminosité naturelle. Le rez-de-jardin s'articule autour d'une grande pièce de vie ouverte sur la terrasse et le jardin, complétée par une chambre d'amis et une buanderie attenante au garage. À l'étage, l'espace nuit comprend quatre chambres confortables, ainsi qu'une salle de bains indépendante. Conçu pour offrir espace, confort et modernité, ce projet peut être personnalisé selon vos envies pour s'adapter parfaitement à votre mode de vie. Une belle opportunité pour construire votre maison dans un cadre paisible et verdoyant, à proximité des commodités et des axes autoroutiers. Artis est constructeur de maisons individuelles depuis près de 35 ans en Pays de Savoie et Pays de Gex. Choisir Artis pour votre projet, c'est bénéficier de toutes les garanties d'un Contrat de Construction de Maison Individuelle et du suivi rigoureux par nos équipes de votre parcours de construction ! Prix : 582 000 € (terrain, frais de notaire, taxes et VRD inclus) Ref : EHE-H130GA-COLocalisation de la commune
                    
                04 50 01 13 14                
            
                                Plus d’informations sur votre maison neuve à Collonges
                            
                                                
                                    
                                    
                                    

