4 chambres
5 pièces
3 niveaux
Venez construire votre maison sur la commune d'ARMOY
Venez sans plus attendre découvrir ce joli projet Terrain + Maison sur la commune d'ARMOY.Un joli terrain au calme, dans un quartier résidentiel à proximité de tout.
Terrain plat, petite vue dent doche.
Artis est constructeur de maisons individuelles depuis plus de 35 ans en Pays de Savoie et Pays de Gex, et vous accompagne à chaque étape de votre projet.
Choisir Artis pour votre maison, c'est bénéficier de toutes les garanties d'un Contrat de Construction de Maison Individuelle (CCMI) et d'un suivi rigoureux assuré par nos équipes tout au long de votre parcours de construction.
Le modèle HERMÈS 111 séduit par son architecture soignée et ses volumes pensés pour le confort de toute la famille. Son agencement propose une belle harmonie entre fonctionnalité et convivialité, avec une pièce de vie agréable et lumineuse, conçue pour s'adapter à votre quotidien.
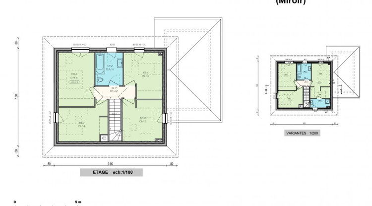
L'espace nuit offre une organisation pratique et bien séparée, idéale pour préserver l'intimité de chacun, avec des chambres confortables et une salle de bains.
Selon votre projet et vos besoins, des aménagements et variantes peuvent être envisagés pour personnaliser la maison et optimiser les espaces.
Contactez-nous pour en savoir plus et étudier votre projet !
Prix du projet : 496 500€ TTC , hors finition, parquet, peinture, cuisine .
Incluant , l'étude de sol, les VRD, viabilités.
Localisation de la commune
04 50 01 13 14
Plus d’informations sur votre maison neuve à Armoy


