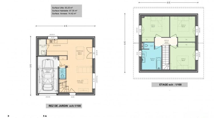
3 chambres
4 pièces
2 niveaux
Faite construire votre maison sur la commune de Sciez-sur-Léman
Découvrez ce projet de construction d'une maison Artis !Au coeur du village , quartier résidentiel et au calme.
Artis est constructeur de maisons individuelles depuis près de 35 ans en Pays de Savoie et Pays de Gex. Choisir Artis pour votre projet, c'est bénéficier de toutes les garanties d'un Contrat de Construction de Maison Individuelle et du suivi rigoureux par nos équipes de votre parcours de construction !
Disponible en 2 ou 4 pans, le modèle Easy Sweet est compacte et très bien conçue : son garage est intégré, et l'espace de vie ouvre sur l'extérieur. A l'étage, profitez de 3 grandes chambres et d'une salle de bains.
Contactez-nous rapidement !
Prix du projet TTC : 455 400€ , hors finition parquet, peinture et cuisine
Localisation de la commune
04 50 01 13 14
Plus d’informations sur votre maison neuve à Sciez


