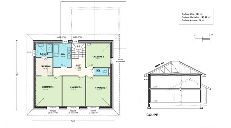
5 chambres
6 pièces
1 niveau
Votre maison neuve ARTIS à PERS JUSSY
Secteur calme de Pers Jussy, terrain plat viabilisé de plus de 900m².Découvrez ce projet de construction d'une maison Artis !
Artis est constructeur de maisons individuelles depuis près de 35 ans en Pays de Savoie et Pays de Gex. Choisir Artis pour votre projet, c'est bénéficier de toutes les garanties d'un Contrat de Construction de Maison Individuelle et du suivi rigoureux par nos équipes de votre parcours de construction !
Architecture de style et maison de famille, la maison Hermès dispose, au rez-de-chaussée, d'une vaste pièce de vie, d'un cellier buanderie et d'une chambre... A l'étage, découvrez une grande salle de bains, 3 chambres spacieuses et une suite parentale ! Un garage accolé complète cette belle villa. Contactez-nous !
Prix : 722 000 € comprenant terrain + frais de notaire + estimation des taxes et VRD + étude de sol + projet maison hors finitions.
REF : BFR - PERS 21
Localisation de la commune
04 50 01 13 14
Plus d’informations sur votre maison neuve à Pers-Jussy


