4 chambres
5 pièces
1 garage
Votre maison neuve dans un secteur calme et privilégié à Léaz
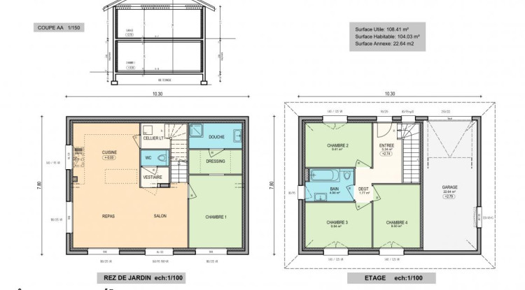
Au sein d'un petit lotissement calme et pavillonnaire, venez découvrir ce projet de construction signé Artis. Implantée sur un terrain de 445 m², la maison proposée s'adapte parfaitement à la pente du terrain grâce à son accès par le haut. À l'étage, vous disposerez de trois chambres ainsi que d'une salle de bains indépendante. Au rez-de-chaussée, vous trouverez une spacieuse pièce de vie ouverte sur le jardin, bénéficiant d'une agréable exposition sud-est, ainsi qu'une chambre en suite avec salle d'eau et dressing pour un véritable confort de plain-pied. Ce projet reste entièrement personnalisable selon vos envies et vos besoins.Artis est constructeur de maisons individuelles depuis près de 35 ans en Pays de Savoie et Pays de Gex. Choisir Artis pour votre projet, c'est bénéficier de toutes les garanties d'un Contrat de Construction de Maison Individuelle et du suivi rigoureux par nos équipes de votre parcours de construction !
Prix : 534 795 € (terrain, frais de notaire, maison, terrassement / raccordement et taxes inclus) REF : EHE-H108-LEAZ
Localisation de la commune
04 50 01 13 14
Plus d’informations sur votre maison neuve à Léaz
