4 chambres
5 pièces
1 garage
Projet de construction maison + Terrain sur la commune de Larringes
Venez découvrir ce projet de construction d'une villa sur un terrain au calme sur la commune de Larringes .Artis est constructeur de maisons individuelles depuis près de 35 ans en Pays de Savoie et Pays de Gex. Choisir Artis pour votre projet, c'est bénéficier de toutes les garanties d'un Contrat de Construction de Maison Individuelle et du suivi rigoureux par nos équipes de votre parcours de construction !
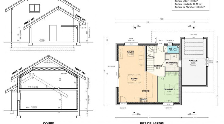
Le modèle Spirit , d'une surface de 110m², est une maison généreuse en espaces annexes et en rangements !
Au rez-de-jardin, découvrez une pièce de vie de près de 35 m² ainsi qu'un bureau. Enfin le dernier niveau dispose de 3 chambres et d'une salle de bains.
Un garage accolé vient compléter ce bien.
Contactez-nous vite !
Prix TTC 469 440 € comprenant :
Terrain + Frais de notaire + villa + VRD
Prix hors parquet et Finition.
Localisation de la commune
04 50 01 13 14
Plus d’informations sur votre maison neuve à Larringes

