5 chambres
6 pièces
2 niveaux
Votre maison neuve ARTIS à Groisy
Secteur très calme de Groisy, terrain plat de plus de 700m².Découvrez ce projet de construction d'une maison Artis !
Artis est constructeur de maisons individuelles depuis près de 35 ans en Pays de Savoie et Pays de Gex. Choisir Artis pour votre projet, c'est bénéficier de toutes les garanties d'un Contrat de Construction de Maison Individuelle et du suivi rigoureux par nos équipes de votre parcours de construction !
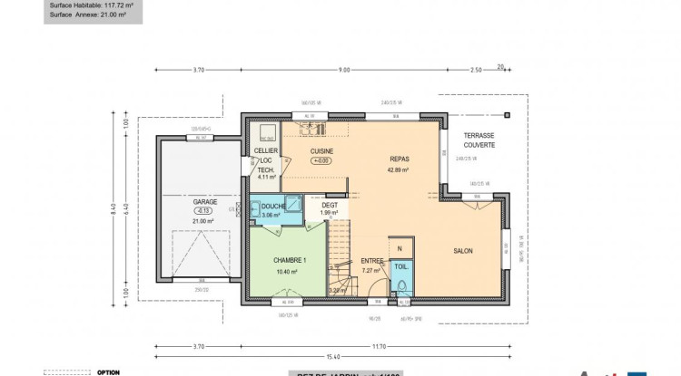
Dans un style moderne à 2 pans, la Panoramik vous invite à profiter de la terrasse couverte avec un accès direct sur une vaste partie jour au rez-de-chaussée et une première chambre équipée d'une salle d'eau.
Le garage est attenant à la maison. Au deuxième étage se trouvent 3 belles chambres familiales ainsi qu'une salle de bain confortable.
Contactez-nous !
Prix : 663000 € comprenant terrain + frais de notaire + estimation des taxes et VRD + étude de sol + projet maison hors finitions.
REF : BFR -GROISY 5
Localisation de la commune
04 50 01 13 14
Plus d’informations sur votre maison neuve à Groisy

