Ma maison idéale

Vos modèles de maison favoris

3 chambres

4 pièces

1 garage

Votre projet de Construction maison et terrain sur Draillant

Venez découvrir ce joli projet sur la commune de Draillant.
Nous vous proposons un projet de maison individuelle clé en main sur un terrain plat en campagne.

Découvrez ce projet de construction d'une maison Artis !
Artis est constructeur de maisons individuelles depuis près de 35 ans en Pays de Savoie et Pays de Gex. Choisir Artis pour votre projet, c'est bénéficier de toutes les garanties d'un Contrat de Construction de Maison Individuelle et du suivi rigoureux par nos équipes de votre parcours de construction !
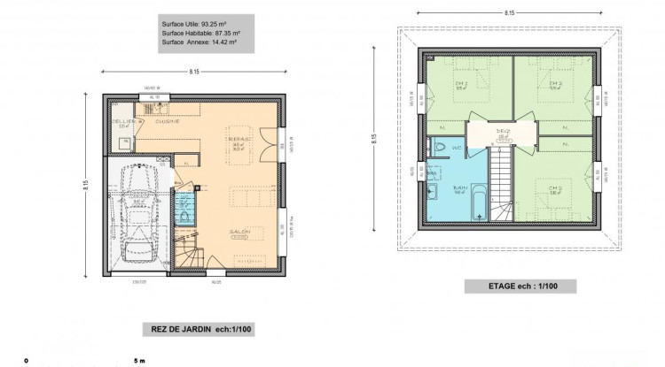
Le modèle Easy Sweet 4 pans est compact et très bien conçu !
Son garage est intégré, et l'espace de vie de près de 35 m² ouvre sur les extérieurs.
A l'étage, profitez de 3 grandes chambres d'environ 12 m², avec rangements possibles, et d'une agréable salle de bains.

Contactez-nous vite !

Prix TTC :435 000€ , comprenant Terrain, + Frais de Notaire+ Estimatif des taxes + Budget terrassement/VRD. Hors finitions : peinture et parquet

REF : MPE-DRAILLANT5
Votre projet de Construction maison et terrain sur Draillant 93m² - 435000€ - 1
Votre projet de Construction maison et terrain sur Draillant 93m² - 435000€ - 2
Localisation de la commune
04 50 01 13 14
Plus d’informations sur votre maison neuve à Draillant
04 50 01 13 14