4 chambres
5 pièces
1 garage
Projet de construction à Champanges !
Découvrez ce projet de construction d'une maison Artis à Champanges sur un beau terrain de 500 m² au calme, dans un cadre campagnard !Artis est constructeur de maisons individuelles depuis près de 35 ans en pays de Savoie et Pays de Gex. Choisir Artis pour votre projet, c'est bénéficier de toutes les garanties d'un Contrat de Construction de Maison Individuelle et d'un accompagnement privilégié par l'équipe de notre agence de Thonon.
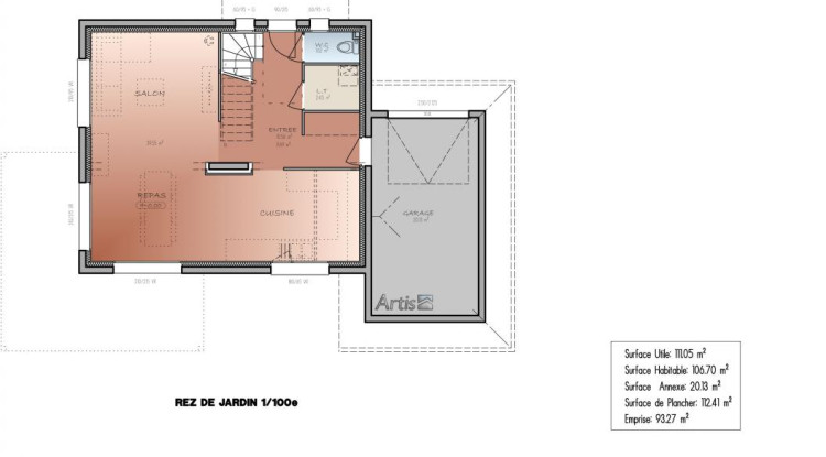
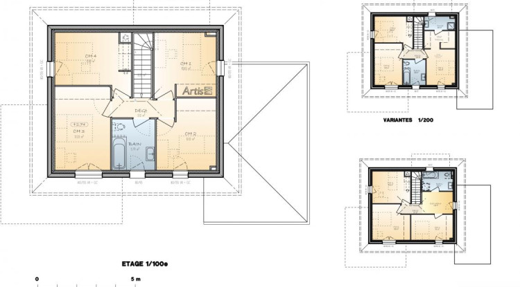
Architecture de style et maison de famille, découvrez le modèle Hermès 100 :
- un garage accolé qui donne sur une vaste pièce de vie au rez-de-jardin,
- à l'étage, une salle de bains et 4 chambres spacieuses.
Contactez-nous !
Prix : 505500 €
Référence FCL
Localisation de la commune
04 50 01 13 14
Plus d’informations sur votre maison neuve à Champanges

