4 chambres
5 pièces
2 niveaux
Projet de maison individuelle à Bossey (74160) – Secteur résidentiel prisé aux portes de Genève
Un projet rare et exclusif, idéal pour une famille recherchant à la fois tranquillité, espace et proximité avec GenèveSitué dans l'un des secteurs résidentiels les plus prisés, au calme et entouré de verdure, ce projet unique offre un cadre de vie privilégié à proximité immédiate de la frontière suisse :
2 minutes de la douane de Croix-de-Rozon
9 minutes du centre de Carouge
20 minutes de l'aéroport international de Genève
Dernière opportunité à Bossey – Terrain de 860 m² piscinable
La société Artis, constructeur reconnu depuis 1989, en partenariat avec ABHome (spécialiste suisse en architecture d'intérieur), vous propose une maison sur mesure, pensée pour conjuguer confort, modernité et élégance.
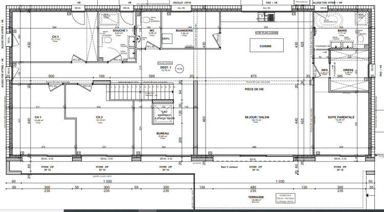
Votre future maison :
Surface habitable : 215 m² (hors sous-sol)
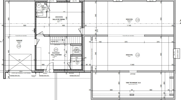
Sous-sol complet de 100 m² entièrement aménageable (salle de sport, home cinéma, appartement indépendant, bureau, etc.)
Garage accolé de 34 m²
VMC double flux pour un confort optimal
Plans et aménagements personnalisables avec un architecte d'intérieur dédié
Finitions intérieures haut de gamme incluses (cuisine, carrelage, parquet, peintures)
Inclus dans le prix global de 1 953 600 € TTC :
Terrain de 860 m²
Conception architecturale et suivi personnalisé
Maison avec sous-sol, garage et terrassement
Menuiseries aluminium, brise-soleils, murs extérieurs en béton brut
Finitions intérieures complètes
Conformité aux normes RE2020 (dernière réglementation thermique)
(Frais de notaire en sus, environ 44500€)
Référence : NAC-BOSSEY
Localisation de la commune
04 50 01 13 14
Plus d’informations sur votre maison neuve à Bossey

