4 chambres
5 pièces
2 niveaux
Venez construire votre Maison Artis sur la commune d'Armoy
Venez; sans plus attendre découvrir ce projet de construction , Maison + Terrain sur la commune d'Armoy.Terrain plat, vue sur la dent d'oche, dans un quartier résidentiel et au calme.
Artis est constructeur de maisons individuelles depuis près de 35 ans en Pays de Savoie et Pays de Gex. Choisir Artis pour votre projet, c'est bénéficier de toutes les garanties d'un Contrat de Construction de Maison Individuelle et du suivi rigoureux par nos équipes de votre parcours de construction !
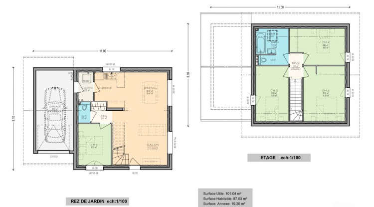
Généreuse en espaces annexes et en rangements, la Spirit multiplie les possibilités ! Coin cuisine, repas et salon s'étendent sur un beau volume, complété d'un bureau ou d'une chambre de plain-pied.
A l'étage les rangements optimisent l'espace des 3 chambres. Le garage est accolé. Une seconde salle d'eau est aménageable au rez de chaussée.
Contactez-nous vite !
Prix du projet TTC 468 288€ , incluant : Le prix du terrain, les VRD, Viabilités, l'étude de sol, et les frais de notaires.
Prix hors finitions : parquets et peintures
MPE-ARMOY-SPIRIT-1
Localisation de la commune
04 50 01 13 14
Plus d’informations sur votre maison neuve à Armoy
