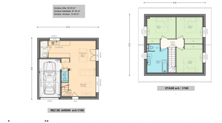
3 chambres
4 pièces
2 niveaux
Votre maison neuve ARTIS à Arenthon
Secteur très qualitatif d'Arenthon, calme absolu, terrain plat d'environ 600m².Découvrez ce projet de construction d'une maison Artis !
Artis est constructeur de maisons individuelles depuis près de 35 ans en Pays de Savoie et Pays de Gex. Choisir Artis pour votre projet, c'est bénéficier de toutes les garanties d'un Contrat de Construction de Maison Individuelle et du suivi rigoureux par nos équipes de votre parcours de construction !
Disponible en 2 ou 4 pans, le modèle Easy Sweet est compacte et très bien conçue : son garage est intégré, et l'espace de vie ouvre sur l'extérieur. A l'étage, profitez de 3 grandes chambres et d'une salle de bains.
Contactez-nous !
Prix : 476 000 € comprenant terrain + frais de notaire + estimatif taxes + budget VRD + projet maison hors finitions.
Etude de sol déjà réalisée.
REF : BFR - ARENTHON 11
Localisation de la commune
04 50 01 13 14
Plus d’informations sur votre maison neuve à Arenthon


