5 chambres
6 pièces
2 niveaux
Votre maison neuve ARTIS à Arenthon
Secteur calme à Arenthon, terrain de 643m² plat.Découvrez ce projet de construction d'une maison Artis !
Artis est constructeur de maisons individuelles depuis près de 35 ans en Pays de Savoie et Pays de Gex. Choisir Artis pour votre projet, c'est bénéficier de toutes les garanties d'un Contrat de Construction de Maison Individuelle et du suivi rigoureux par nos équipes de votre parcours de construction !
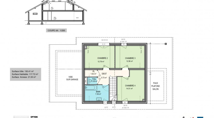
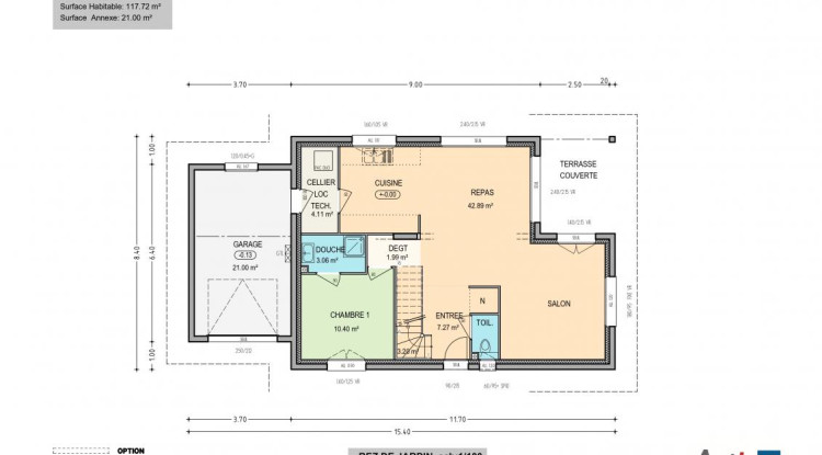
Dans un style moderne à 2 pans, la Panoramik vous invite à profiter de la terrasse couverte avec un accès direct sur une vaste partie jour au rez-de-chaussée et une première chambre équipée d'une salle d'eau.
Le garage est attenant à la maison. Au deuxième étage se trouvent 3 belles chambres familiales ainsi qu'une salle de bain confortable.
Contactez-nous !
Prix : 555 000 € comprenant terrain + frais de notaire + estimation des taxes et VRD + étude de sol + projet maison hors finitions.
REF : BFR - ARENTHON 21
Localisation de la commune
04 50 01 13 14
Plus d’informations sur votre maison neuve à Arenthon


