3 chambres
5 pièces
3 niveaux
Votre maison neuve Artis à Ville en Sallaz plein Sud vue dégagée sur les montagnes !!
Venez découvrir votre maison neuve Artis sur un terrain profitant d'une magnifique vue sur les montagnes plein sud !!Découvrez ce projet de construction d'une maison Artis ! Artis est constructeur de maisons individuelles depuis plus de 35 ans en Pays de Savoie et Pays de Gex, et vous accompagne à chaque étape de votre projet.
Choisir Artis pour votre maison, c'est bénéficier de toutes les garanties d'un Contrat de Construction de Maison Individuelle (CCMI) et d'un suivi rigoureux assuré par nos équipes tout au long de votre parcours de construction.
Le modèle SPIRIT 110 sur sous-sol, d'une surface de 110 m², séduit par sa conception fonctionnelle et ses volumes généreux, avec de nombreux espaces annexes et des rangements bien pensés.
Au sous-sol, vous profitez d'un garage ainsi que de deux caves, idéales pour le stockage et l'organisation du quotidien.
Au rez-de-jardin, la maison s'ouvre sur une belle pièce de vie d'environ 35 m², agréable et conviviale, complétée par un bureau, parfait pour le télétravail ou une pièce polyvalente.
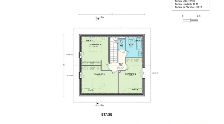
Enfin, le dernier niveau propose trois chambres et une salle de bains, pour un espace nuit confortable et bien séparé.
Contactez-nous pour en savoir plus et étudier votre projet !
Prix maison : 460 700 € comprenant terrain + frais de notaire + budget VRD + estimatif des taxes- projet maison hors lots peinture et parquets des chambres.
REF ANNONCE : MGA-VILLE-CHARBO
Localisation de la commune
04 50 01 13 14
Plus d’informations sur votre maison neuve à Ville-en-Sallaz
