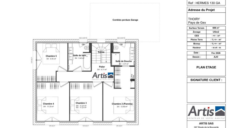
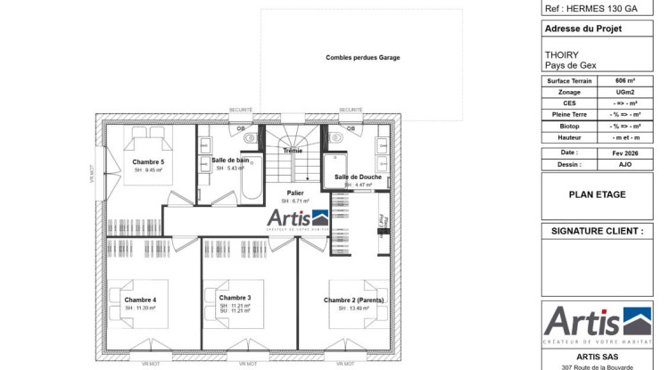
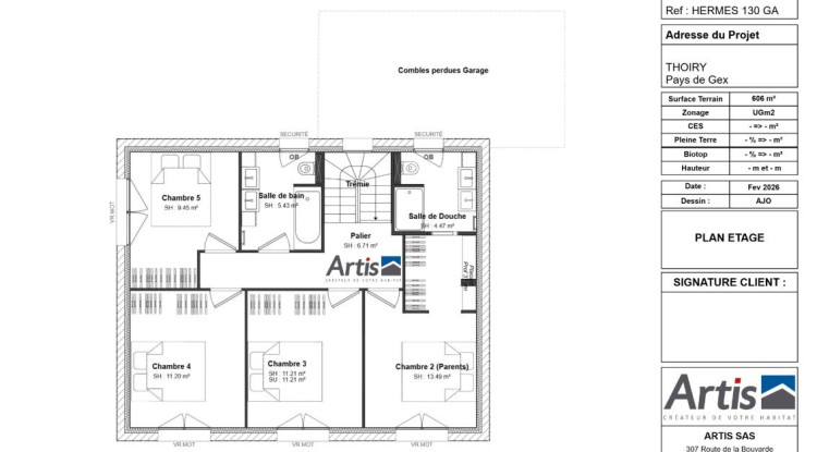
4 chambres
5 pièces
1 garage
THOIRY proche Centre village - Maison ARTIS 129 m² + Terrain 600 m²
THOIRY, proche centre village, à 750m de la ligne de bus TPG 68 (Pour Meyrin), proche du centre village et de ses commerces, Joli terrain de 600 m² (Zone UGm²) en limite de zone constructible.Votre maison Individuelle ARTIS de 129 m² avec sa pièce de vie de 49 m² et ses 4 chambres, dont sa suite parentale de 18 m² avec Chambre/Dressing/Salle de bains.
Un garage de près de 20m² avec porte sectionnelle.
Terrain piscinable.
Plans modulables pour plus de confort - Possibilité double garage - Possibilité d'une maison plus grande.
Nouveauté avec les Maisons ARTIS, Constructeur de maisons individuelles depuis plus de 35 ans en Pays de Gex et Pays de Savoie.
Atouts :
• Sa vue Alpes depuis l'étage.
• Son emplacement, en connexion rapide sur le CERN, Meyrin, Genève.
• Son orientation Est => Ouest pour un ensoleillement maximum.
• La profondeur de son jardin.
• Sa spacieuse pièce de vie de 49 m².
• Ses 4 chambres et le confort de 2 Salles de bains.
• Sa distribution optimisée pensée pour l'installation de nombreux et grands placards.
• Son terrain pouvant recevoir une maison plus grande. Possibilité Piscine.
Répondant aux dernières normes de Performance Energétique (RE2020), bénéficiant du confort d'une Pompe à chaleur et de Chauffage au sol.
Vous souhaitez découvrir toutes les prestations qui équipent cette maison, vous souhaitez la faire correspondre à votre mode de vie, n'hésitez pas à nous contacter. (Agence ARTIS Pays de Gex à Ferney-Voltaire, en face la Poste).
Prix :705.000 € comprenant Terrain + Frais de notaire + Construction + Assurance Dommage Ouvrage + Taxes d'Aménagement/Raccordement + Terrassement et Raccordement réseaux + Sanitaires + Carrelage/Faïence.
Hors Peinture/Parquet, Hors Cuisine, Hors Aménagement Extérieur.
Rencontrons nous pour un prévisionnel complet et détaillé !
Choisir Les Maisons Artis pour votre projet, c'est bénéficier de toutes les garanties d'un Contrat de Construction de Maisons Individuelles et du suivi rigoureux de votre parcours de construction par nos équipes!
Localisation de la commune
04 50 01 13 14
Plus d’informations sur votre maison neuve à Thoiry

