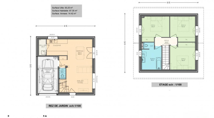
3 chambres
4 pièces
2 niveaux
Votre maison neuve ARTIS à Pers Jussy
Secteur Pers Jussy, au calme, terrain plat. Petit terrain avec peu d'entretien.Découvrez ce projet de construction d'une maison Artis !
Artis est constructeur de maisons individuelles depuis près de 35 ans en Pays de Savoie et Pays de Gex. Choisir Artis pour votre projet, c'est bénéficier de toutes les garanties d'un Contrat de Construction de Maison Individuelle et du suivi rigoureux par nos équipes de votre parcours de construction !
Disponible en 2 ou 4 pans, le modèle Easy Sweet est compacte et très bien conçue : son garage est intégré, et l'espace de vie ouvre sur l'extérieur. A l'étage, profitez de 3 grandes chambres et d'une salle de bains.
Contactez-nous !
Prix : 418 000 € comprenant terrain + frais de notaire + estimation des taxes et VRD + étude de sol + projet maison hors finitions.
REF : BFR - PERS 22
Localisation de la commune
04 50 01 13 14
Plus d’informations sur votre maison neuve à Pers-Jussy


