4 chambres
5 pièces
2 niveaux
Votre maison neuve ARTIS à MARIGNIER
Secteur Marignier, terrain de plus de 600m², plat et au calme.Découvrez ce projet de construction d'une maison Artis !
Artis est constructeur de maisons individuelles depuis près de 35 ans en Pays de Savoie et Pays de Gex. Choisir Artis pour votre projet, c'est bénéficier de toutes les garanties d'un Contrat de Construction de Maison Individuelle et du suivi rigoureux par nos équipes de votre parcours de construction !
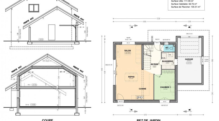
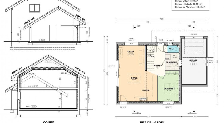
Généreuse en espaces annexes et en rangements, la Spirit multiplie les possibilités ! Coin cuisine, repas et salon s'étendent sur un beau volume, complété d'un bureau ou d'une chambre de plain-pied.
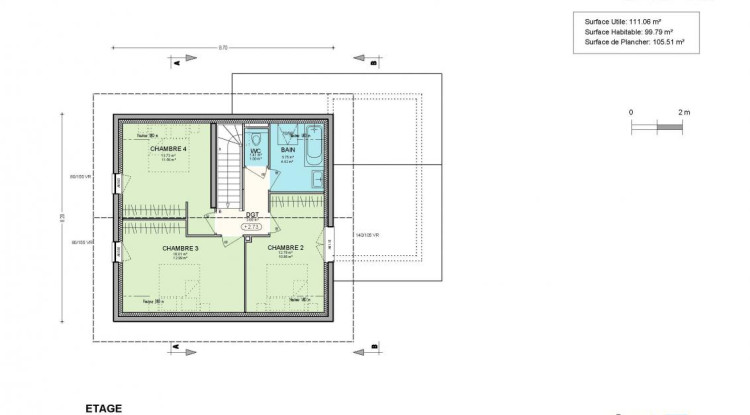
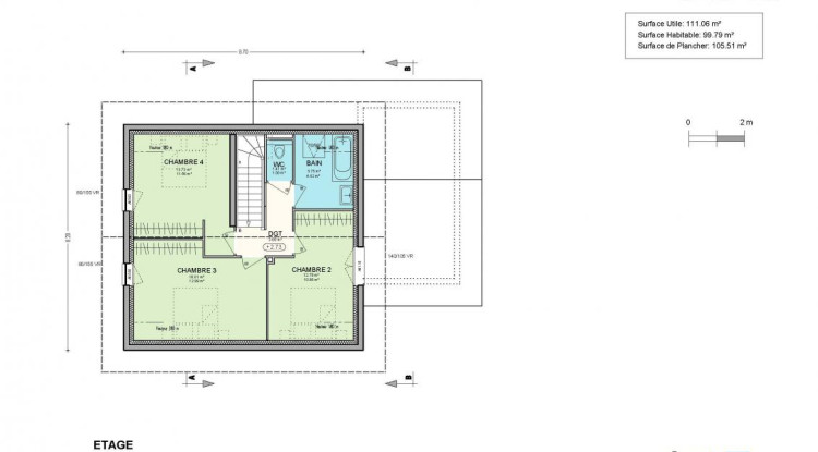
A l'étage les rangements optimisent l'espace des 3 chambres. Le garage est accolé. Une seconde salle d'eau est aménageable au rez de chaussée.
Contactez-nous !
PRIX : 503 000 € comprenant terrain + frais de notaire + estimatif des VRD + projet maison hors finitions + études de sol
REF : BFR - MAR 4
Localisation de la commune
04 50 01 13 14
Plus d’informations sur votre maison neuve à Marignier


