4 chambres
5 pièces
1 garage
Votre maison Artis à Fillinges belle vue montagne
Découvrez votre projet de construction Artis sur la commune de Fillinges plein sud au calme avec vue dégagée sur les montagnes.Découvrez ce projet de construction d'une maison Artis !
Artis est constructeur de maisons individuelles depuis près de 35 ans en Pays de Savoie et Pays de Gex. Choisir Artis pour votre projet, c'est bénéficier de toutes les garanties d'un Contrat de Construction de Maison Individuelle et du suivi rigoureux par nos équipes de votre parcours de construction !
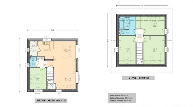
Le modèle Spirit sur sous-sol, d'une surface de 97m², est une maison généreuse en espaces annexes et en rangements !
Au sous-sol se trouvent un garage.
Au rez-de-jardin, découvrez une pièce de vie de près de 35 m² ainsi qu'un bureau. Enfin le dernier niveau dispose de 3 chambres et d'une salle de bains.
Contactez-nous !
Prix maison : 490'600 € comprenant terrain + frais de notaire + budget VRD + projet maison hors décorations.
Référence AME_FILLINGES-CHAMP
Localisation de la commune
04 50 01 13 14
Plus d’informations sur votre maison neuve à Fillinges


