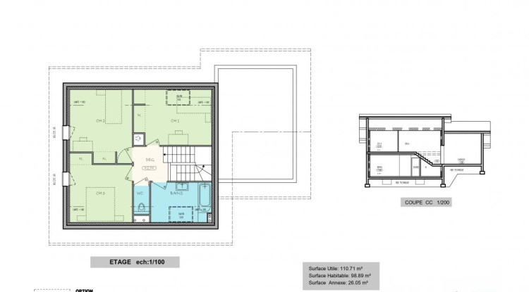
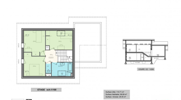
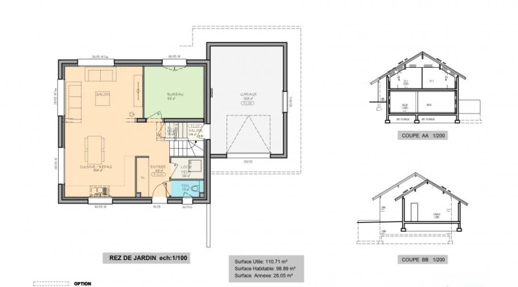
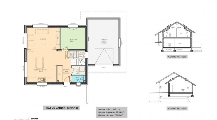
3 chambres
5 pièces
2 niveaux
Votre projet sur mesure à La Combe de Sillingy
Découvrez ce projet de construction d'une maison Artis !Artis est constructeur de maisons individuelles depuis près de 35 ans en Pays de Savoie et Pays de Gex. Choisir Artis pour votre projet, c'est bénéficier de toutes les garanties d'un Contrat de Construction de Maison Individuelle et du suivi rigoureux par nos équipes de votre parcours de construction !
Alliance de charme et de technicité, la Cosy dispose de très beaux espaces de vie. L'accès à mi-niveau, avec un garage accolé, dessert à l'étage une partie nuit de 3 belles chambres et une salle de bains spacieuse et en rez-de-chaussée un coin repas ouvert sur jardin vaste et agréable. Une pièce supplémentaire s'aménage selon vos souhaits. Contactez-nous !
prix: 623 000 € Ref: FCH
Localisation de la commune
04 50 01 13 14
Plus d’informations sur votre maison neuve à Fillières


