3 chambres
5 pièces
1 garage
Votre projet de construction avec vue Parmelan
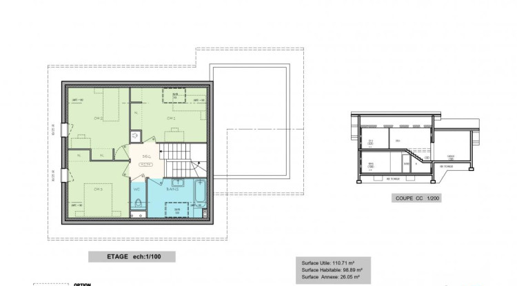
Dans un écrin de verdure avec vue Parmelan, venez découvrir ce projet de construction proposé par Artis. Sur ce terrain en demie-pente et en position dominante, ne manquez pas l'opportunité de cette maison de 110m² de surface habitable avec garage attenant. Vous disposerez de trois chambres et d'un espace de travail, l'ensemble implanté sur un terrain de 900m². Ce projet reste entièrement personnalisable selon vos envies.Artis est constructeur de maisons individuelles depuis près de 35 ans en Pays de Savoie et Pays de Gex. Choisir Artis pour votre projet, c'est bénéficier de toutes les garanties d'un Contrat de Construction de Maison Individuelle et du suivi rigoureux par nos équipes de votre parcours de construction !
Prix : 854 000 € REF : STMARTIN-FDE-FCH-EHE
Localisation de la commune
04 50 01 13 14
Plus d’informations sur votre maison neuve à Fillière
