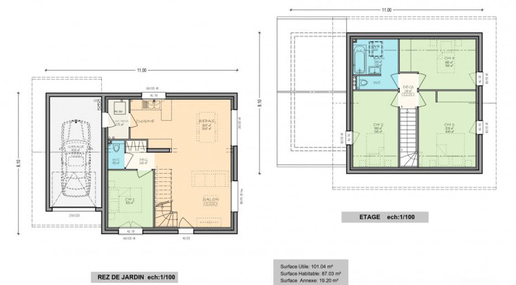
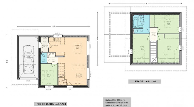
4 chambres
5 pièces
1 garage
Votre maison neuve Artis sur un terrain plat à Éloise
Artis vous propose ce projet de construction à personnaliser selon vos envies, sur un terrain plat de 760 m² idéalement situé à Éloise. La maison d'environ 100m² habitable sera implantée sur une belle parcelle exposée plein sud, dans un environnement résidentiel calme, à seulement cinq minutes des accès autoroutiers de La Semine et de Valserhône. Conçue sur deux niveaux, cette maison allie confort et praticité. Le rez-de-chaussée comprend une grande pièce de vie ouverte sur le jardin ainsi qu'une chambre offrant une vraie vie de plain-pied. À l'étage, vous trouverez trois chambres doubles et une salle de bains. Un garage accolé vient compléter l'ensemble. Artis est constructeur de maisons individuelles depuis près de 35 ans en Pays de Savoie et Pays de Gex. Choisir Artis pour votre projet, c'est bénéficier de toutes les garanties d'un Contrat de Construction de Maison Individuelle et du suivi rigoureux par nos équipes de votre parcours de construction ! Prix : 465 000 € (terrain, frais de notaire, taxes et VRD inclus) Ref : EHE-SPI100-ELOILocalisation de la commune
04 50 01 13 14
Plus d’informations sur votre maison neuve à Éloise
