4 chambres
6 pièces
2 niveaux
Votre projet sur 1000 m à Droisy terrain plat
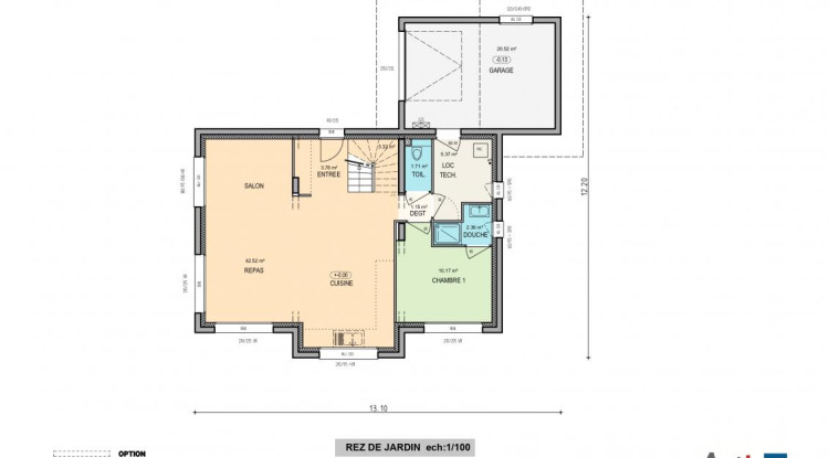
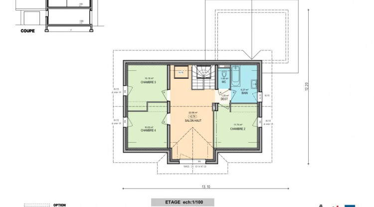
Découvrez ce projet de construction d'une maison Artis ! Artis est constructeur de maisons individuelles depuis près de 35 ans en Pays de Savoie et Pays de Gex. Choisir Artis pour votre projet, c'est bénéficier de toutes les garanties d'un Contrat de Construction de Maison Individuelle et du suivi rigoureux par nos équipes de votre parcours de construction ! De grands espaces de vie et un style familial : cédez à la tentation du modèle Horizon ! La maison propose une pièce à vivre spacieuse au rez-de-chaussée ainsi qu'un espace nuit avec une salle d'eau. Au premier étage, profitez de 3 chambres, d'une salle de bain et d'un agréable salon haut. Le garage est accolé à la maison, accessible via le local technique. Contactez-nous ! Ref: FCH DROISY 522 800 €Localisation de la commune
04 50 01 13 14
Plus d’informations sur votre maison neuve à Droisy


