Ma maison idéale

Vos modèles de maison favoris

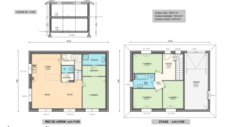
4 chambres

5 pièces

1 garage

Votre maison Artis avec vue dégagée et panoramique à Desingy

Sur la commune de Desingy, dans un environnement calme et privilégié, découvrez ce projet de construction implanté sur un terrain d'environ 980 m², dont 454 m² constructibles, offrant une belle vue dégagée sur les environs.

La maison, d'une surface habitable d'environ 108 m², est pensée pour s'adapter parfaitement à la topographie du terrain, avec un accès par le haut.
Elle propose au rez-de-chaussée une grande pièce de vie lumineuse, ouverte sur l'extérieur, avec accès direct au jardin et une vue agréable. Une suite parentale complète ce niveau, comprenant chambre, dressing et salle d'eau, offrant un vrai confort de vie de plain-pied.

À l'étage, l'espace nuit se compose de trois chambres ainsi qu'une salle de bains, idéal pour une famille.

Ce projet allie calme, vue, fonctionnalité et qualité de vie, dans un secteur recherché pour sa tranquillité et son cadre naturel.

Artis est constructeur de maisons individuelles depuis près de 35 ans en Pays de Savoie et Pays de Gex. Choisir Artis pour votre projet, c'est bénéficier de toutes les garanties d'un Contrat de Construction de Maison Individuelle et du suivi rigoureux par nos équipes de votre parcours de construction !
Prix : 487 000 € (terrain, frais de notaire, taxes et VRD inclus) Ref : EHE-H108-DESINGY
Votre maison Artis avec vue dégagée et panoramique à Desingy 108m² - 487000€ - 1
Votre maison Artis avec vue dégagée et panoramique à Desingy 108m² - 487000€ - 2
Localisation de la commune
04 50 01 13 14
Plus d’informations sur votre maison neuve à Desingy
04 50 01 13 14