Nos bureaux seront fermés du mardi 23 décembre 2025 au soir au vendredi 2 janvier 2026 : rendez-vous dès 8h30 le lundi 5 janvier !

Ma maison idéale

Vos modèles de maison favoris

3 chambres

5 pièces

2 niveaux

Votre maison neuve Artis sur la prisée commune de Cranves Sales !!

Venez découvrir votre maison neuve Artis sur les hauteurs de la prisée commune de Cranves Sales avec une vue dégagée sur le Salève !!

Découvrez ce projet de construction d'une maison Artis !
Artis est constructeur de maisons individuelles depuis près de 35 ans en Pays de Savoie et Pays de Gex. Choisir Artis pour votre projet, c'est bénéficier de toutes les garanties d'un Contrat de Construction de Maison Individuelle et du suivi rigoureux par nos équipes de votre parcours de construction !
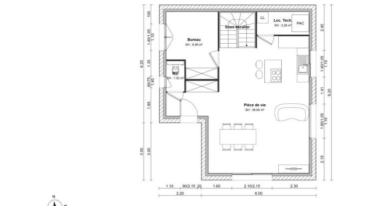
Généreuse en espaces annexes et en rangements, la Spirit multiplie les possibilités ! Coin cuisine, repas et salon s'étendent sur un beau volume, complété d'un bureau ou d'une chambre de plain-pied.
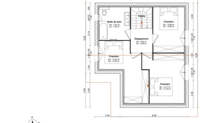
A l'étage les rangements optimisent l'espace des 3 chambres. Une seconde salle d'eau est aménageable au rez de chaussée.
Contactez-nous !

Prix maison : 496'700 € comprenant terrain + frais de notaire + budget VRD + projet maison hors décorations.
Votre maison neuve Artis sur la prisée commune de Cranves Sales !! 103m² - 496700€ - 1
Votre maison neuve Artis sur la prisée commune de Cranves Sales !! 103m² - 496700€ - 2
Votre maison neuve Artis sur la prisée commune de Cranves Sales !! 103m² - 496700€ - 3
Localisation de la commune
04 50 01 13 14
Plus d’informations sur votre maison neuve à Cranves-Sales
04 50 01 13 14