4 chambres
5 pièces
1 garage
Maison neuve Artis sur grand terrain de 850 m²
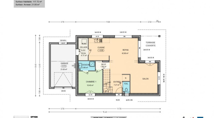
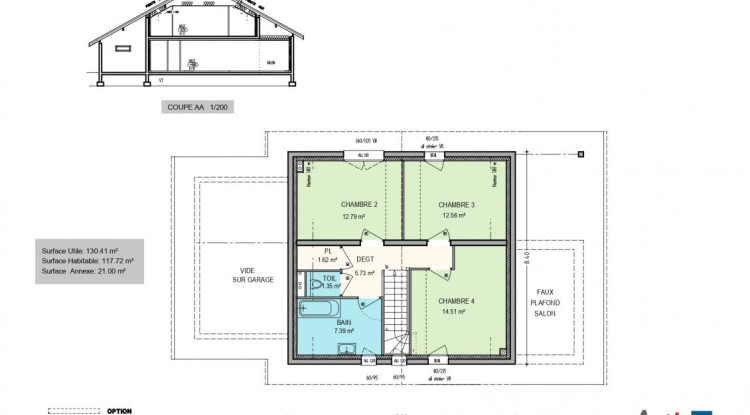
Sur la commune de Choisy, au cœur d'un environnement calme et verdoyant, découvrez l'opportunité de réaliser la maison de vos rêves sur un terrain spacieux de 850 m². Vous serez séduits par son cadre privilégié, alliant tranquillité et vue dégagée. Artis vous propose une maison d'environ 130 m², entièrement adaptable selon vos envies et vos besoins. Conçue sur deux niveaux, elle offre une vaste pièce de vie ouverte sur le jardin ainsi qu'une chambre en suite au rez-de-chaussée, permettant un véritable confort de plain-pied. À l'étage, vous trouverez trois chambres doubles ainsi qu'une salle de bains. Pour davantage de commodité, la maison dispose également d'un garage accolé.Artis est constructeur de maisons individuelles depuis près de 35 ans en Pays de Savoie et Pays de Gex. Choisir Artis pour votre projet, c'est bénéficier de toutes les garanties d'un Contrat de Construction de Maison Individuelle et du suivi rigoureux par nos équipes de votre parcours de construction !
Localisation de la commune
04 50 01 13 14
Plus d’informations sur votre maison neuve à Choisy
