Nos bureaux seront fermés du mardi 23 décembre 2025 au soir au vendredi 2 janvier 2026 : rendez-vous dès 8h30 le lundi 5 janvier !

Ma maison idéale

Vos modèles de maison favoris

4 chambres

5 pièces

1 garage

Votre maison ARTIS dans un hameau calme de la commune de Chilly

Venez découvrir, dans un hameau de la commune de Chilly, ce beau projet de construction signé ARTIS. Située dans un environnement calme et champêtre, cette maison de près de 112 m² est implantée sur un spacieux terrain plat de 869 m².
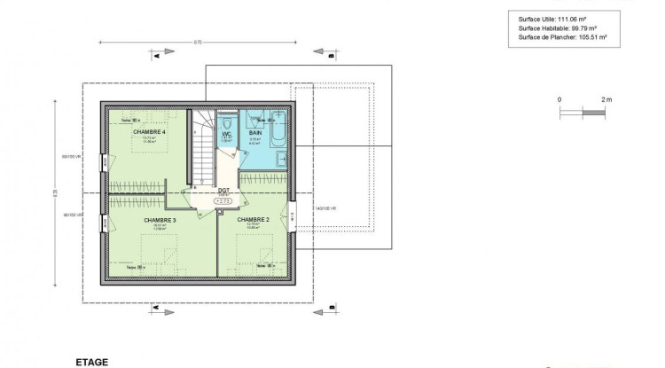
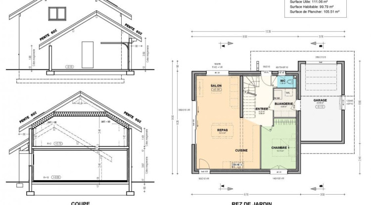
Pensée sur deux niveaux, elle offre en rez-de-jardin une lumineuse pièce de vie exposée plein sud, avec un accès direct à la terrasse et au jardin. Pour un véritable confort de plain-pied, une chambre est également prévue à ce niveau. À l'étage, vous trouverez trois belles chambres ainsi qu'une salle de bains indépendante, idéales pour accueillir toute la famille. Pour plus de commodités, la maison dispose d'un garage accolé.
Le modèle présenté est une base évolutive : chaque élément peut être ajusté selon vos envies, dans le respect des contraintes techniques et du règlement d'urbanisme.
Artis est constructeur de maisons individuelles depuis près de 35 ans en Pays de Savoie et Pays de Gex. Choisir Artis pour votre projet, c'est bénéficier de toutes les garanties d'un Contrat de Construction de Maison Individuelle et du suivi rigoureux par nos équipes de votre parcours de construction ! Contactez-nous pour étudier ensemble une version personnalisée de ce projet.
Prix : 490 860 € (terrain, frais de notaire, taxes et VRD inclus) réf EHE-CHILLY
Votre maison ARTIS dans un hameau calme de la commune de Chilly 112m² - 490860€ - 1
Votre maison ARTIS dans un hameau calme de la commune de Chilly 112m² - 490860€ - 2
Localisation de la commune
04 50 01 13 14
Plus d’informations sur votre maison neuve à Chilly
04 50 01 13 14