4 chambres
5 pièces
2 niveaux
Votre maison neuve Artis à Bonne , vue dégagée sur les montagnes
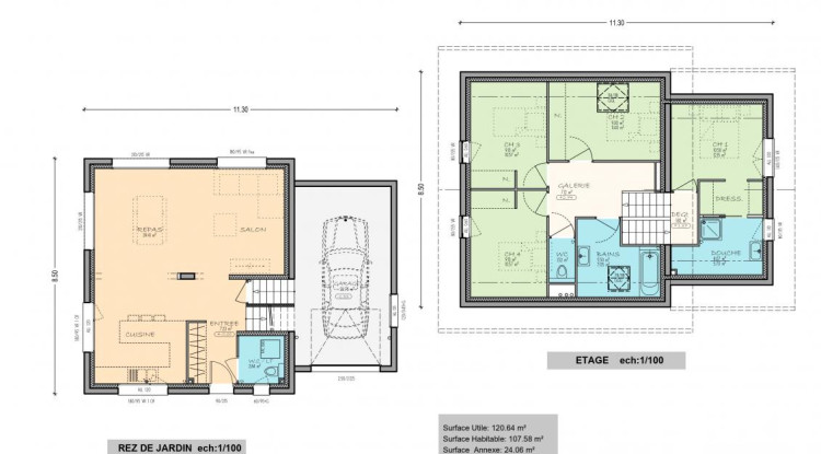
Découvrez votre maison Artis, sur la commune de Bonne, exposition plein sud, avec une magnifique vue dégagée sur les Montagnes Découvrez ce projet de construction d'une maison Artis ! Artis est constructeur de maisons individuelles depuis près de 35 ans en Pays de Savoie et Pays de Gex. Choisir Artis pour votre projet, c'est bénéficier de toutes les garanties d'un Contrat de Construction de Maison Individuelle et du suivi rigoureux par nos équipes de votre parcours de construction !! Réponse idéale aux terrains en légère pente, le modèle Isis M propose un agencement intérieur unique : ses niveaux décalés créent des zones indépendantes. Le demi-niveau au rez de jardin, « côté jour », ouvre sur un bel espace de vie de 40 m². Au demi-niveau supérieur, découvrez une grande suite avec chambre, dressing et salle de bains. Enfin le dernier palier dispose de 3 chambres et d'une salle de bains. Le garage est intégré. Prix maison : 553 275€ comprenant terrain + frais de notaire + budget VRD + projet maison hors décorations. REF ANNONCE : AME-BONNE-LIM Contactez-nous !Localisation de la commune
04 50 01 13 14
Plus d’informations sur votre maison neuve à Bonne
