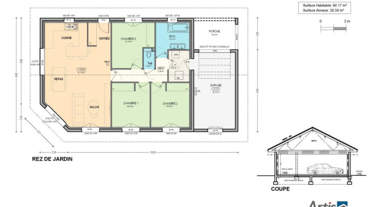
3 chambres
4 pièces
1 niveau
Maison neuve de plain-pied à Seynod – Calme, confort et proximité du centre-ville
À deux pas du centre-ville de Seynod, dans un secteur résidentiel calme et sans vis-à-vis, laissez-vous séduire par ce projet de maison contemporaine implanté sur un beau terrain plat.Cette maison de plain-pied séduit par son architecture moderne aux lignes horizontales, son organisation claire et fonctionnelle et ses volumes bien pensés :
- un vaste séjour lumineux ouvrant sur le jardin,
- un espace nuit composé de 3 chambres et d'une salle de bain familiale,
- un garage accolé pour plus de praticité.
L'aménagement intérieur, comme les finitions, sont entièrement personnalisables pour répondre à vos envies et à votre mode de vie.
Avec Maisons Artis, vous bénéficiez de plus de 35 ans d'expérience dans la construction de maisons sur mesure, d'un accompagnement complet et transparent, et de garanties solides pour bâtir en toute confiance.
Prix : 645 320 € (terrain + maison, selon descriptif et sous réserve de disponibilité du terrain)
Réf. : FCH-SEYNOD-PP-HELIOS
Contactez-nous pour plus d'informations ou pour étudier ensemble votre projet personnalisé.
Localisation de la commune
04 50 01 13 14
Plus d’informations sur votre maison neuve à Annecy


